Doppelhaus
in Beelen

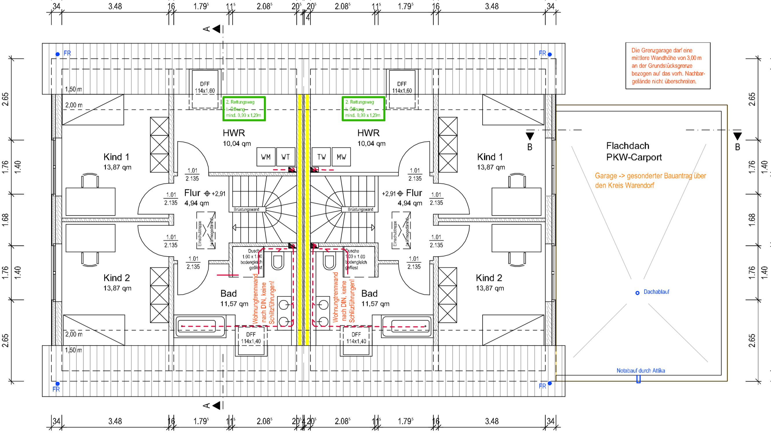
In einer ruhigen Lage wurde das Doppelhaus mit einer Größe von ca. 120 qm je Haushälfte und einer Doppelgarage mit Abstellraum gebaut.

Aufgeteilt auf zwei helle und gut geschnittene Wohnungen bietet dieses Haus viel Platz für individuelle Wohnträume. (Architekten: Spiekermann)

Auch hier wurde mit der exklusiven MHM-Mauer gearbeitet. Die Rückmeldung der Bewohner, bestätigt uns in der Aussage, dass diese Bauweise für eine gesunde Wohlfühlatmosphäre sorgt und deutlich weniger Energie verbraucht.



Ansichten




Grundrisse